Dom w cenie mieszkania

Tarnobrzeg

O inwestycji

Szczegóły Projektu

Każdy z czterech domów będzie charakteryzował się:

  • Powierzchnią użytkową 90 m².
  • Przestronnym układem pomieszczeń, w tym:
  • Salon z aneksem kuchennym, idealny do rodzinnych spotkań.
  • 3-4 sypialnie, zapewniające prywatność dla wszystkich domowników.
  • Funkcjonalna łazienka oraz dodatkowe pomieszczenie gospodarcze.

Standard Wykończenia

Domy zostaną wykończone z wysokiej jakości materiałów, z naciskiem na:

  • Energooszczędność (możliwość zastosowania paneli słonecznych).
  • Nowoczesne rozwiązania grzewcze (np. pompy ciepła).
  • Możliwość dostosowania wykończenia do indywidualnych preferencji nabywców.

Koszty i Finansowanie

Ceny domów będą konkurencyjne w stosunku do lokalnego rynku, a inwestycja jest doskonałą okazją zarówno dla rodzin, jak i osób planujących przyszłość. Dostępne będą różne formy finansowania, w tym:

  • Kredyty hipoteczne.
  • Pomoc w uzyskaniu dofinansowania lub dotacji.

Harmonogram

Planowana budowa potrwa od 12 do 18 miesięcy. Inwestycja zostanie zrealizowana etapowo, co zapewni pełną przejrzystość procesu budowy. Przewidziane są regularne aktualizacje postępu prac dla nabywców.

PARTER48,30(51,30)
1. Wiatrołap3,19 
2. Garderoba1,75(4,75)
3. Kuchnia8,76 
4. Salon + Jadalnia22,23 
5. Pokój6,58 
6. Łazienka2,79 
7. Kotłownia3,00 
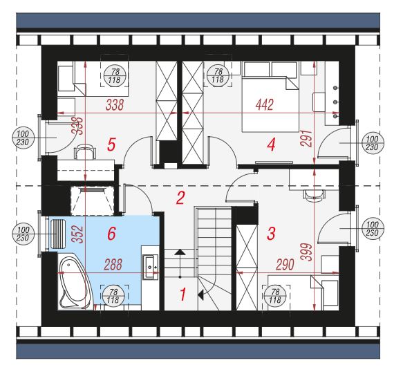
PODDASZE45,41(51,10)
1. Schody4,45 
2. Korytarz5,29 
3. Pokój9,12(10,33)
4. Pokój10,71(12,57)
5. Pokój8,57(9,99)
6. Łazienka7,27(8,47)
 
Domy do wyboru

Kliknij na domek, by sprawdzić jego dostępność

Dom nr 1 Wolny Dom nr 2 Sprzedany Dom nr 3 Rezerwacja Dom nr 4 Wolny

Dom nr 1 Wolny

Dom nr 2 Sprzedany

Dom nr 3 Rezerwacja

Dom nr 4 Wolny

Inwestycja w liczbach
m2 powierzchni całkowitej
0
m2 powierzchni działki
~ 0
rozpoczęcie budowy
0
ukończenie budowy
0
Lokalizacja

Działki znajdują się w bliskim sąsiedztwie:

  • szkoły 300m
  • sklepu 500m
  • kościoła 1km

 

Nowe osiedle, przyjazne dla rodzin z dziećmi – drogi wewnętrze

Atuty

Atrakcyjnie zaprojektowana elewacja łączy w sobie białą bazę jasnego tynku z elementami szarości, a zwieńczeniem wizualnego efektu jest naturalna okładzina drewniana przy wejściu głównym oraz od strony ogrodu. Antracytowa płaska dachówka, portfenetry i uroczy taras z pergolą zachowują elegancki i nowoczesny charakter domu. Główne wejście osłonięte praktycznym zadaszeniem wprowadza nas do wiatrołapu z garderobą. Strefa dzienna to otwarta przestrzeń, w której salon z wyjściem na zewnętrzną strefę wypoczynku łączy się z jadalnią, w której przewidziano wygodny stół dla rodziny. W pobliżu kuchni znajduje się drugie wyjście na taras, gdzie można zaaranżować kącik kawowy. W kuchni zaprojektowano duże okno, zapewniające dobre naturalne doświetlenie, co zwiększa wygodę podczas pracy. Po przeciwnej stronie parteru mieści się gabinet, mogący pełnić funkcję pokoju gościnnego oraz łazienka z nowoczesnym prysznicem. Kotłownia posiada wejście z wiatrołapu i daje możliwość organizacji pralni. Prywatna część domowników, zaprojektowana na poddaszu, obejmuje trzy wygodne sypialnie z wystarczającą ilością miejsca na łóżka, biurka i szafy. Dopełnieniem programu użytkowego strefy nocnej jest komfortowa łazienka z wanną i prysznicem. 

Energooszczędność

Ogrzewanie gazowe

Garaż

Materiały wysokiej jakości

Duży ogród

Nowoczesne rozwiązania

Kontakt

Skorzystaj z formularza, lub zadzwoń!
Odpowiemy na każde pytanie

biuro sprzedaży

adres inwestycji